Uzgodnienia do Ogłoszenia nr 539916-N-2020 z dnia 2020-05-14 r.
Załączniki
| pismo PUM - uzgodnienie projektu | dodany: 15:50, 14.05.2020 | przez: Joanna Kowalska | |
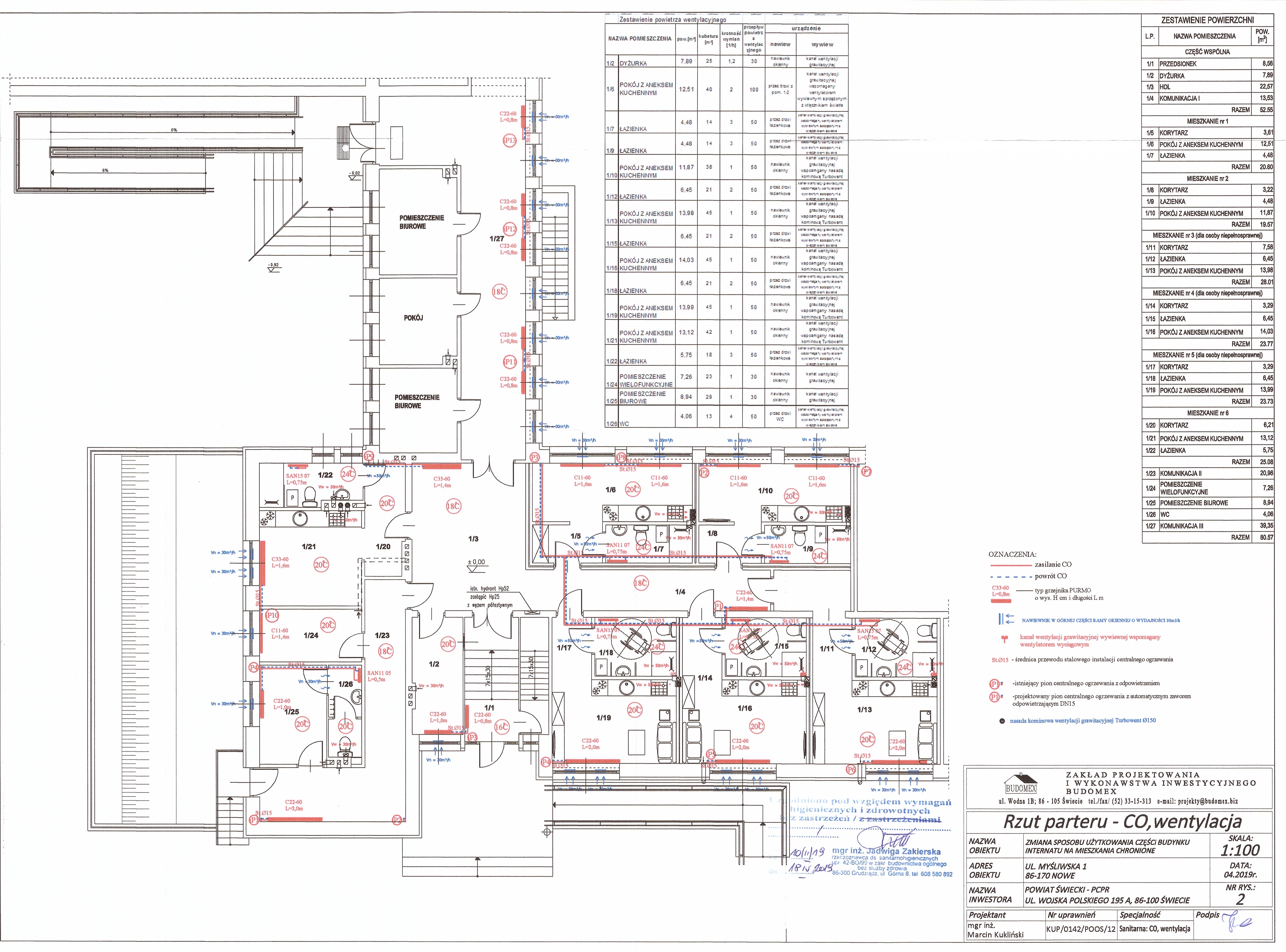
| Rzut parteru uzgodnienia CO, wentylacja | dodany: 15:50, 14.05.2020 | przez: Joanna Kowalska | |
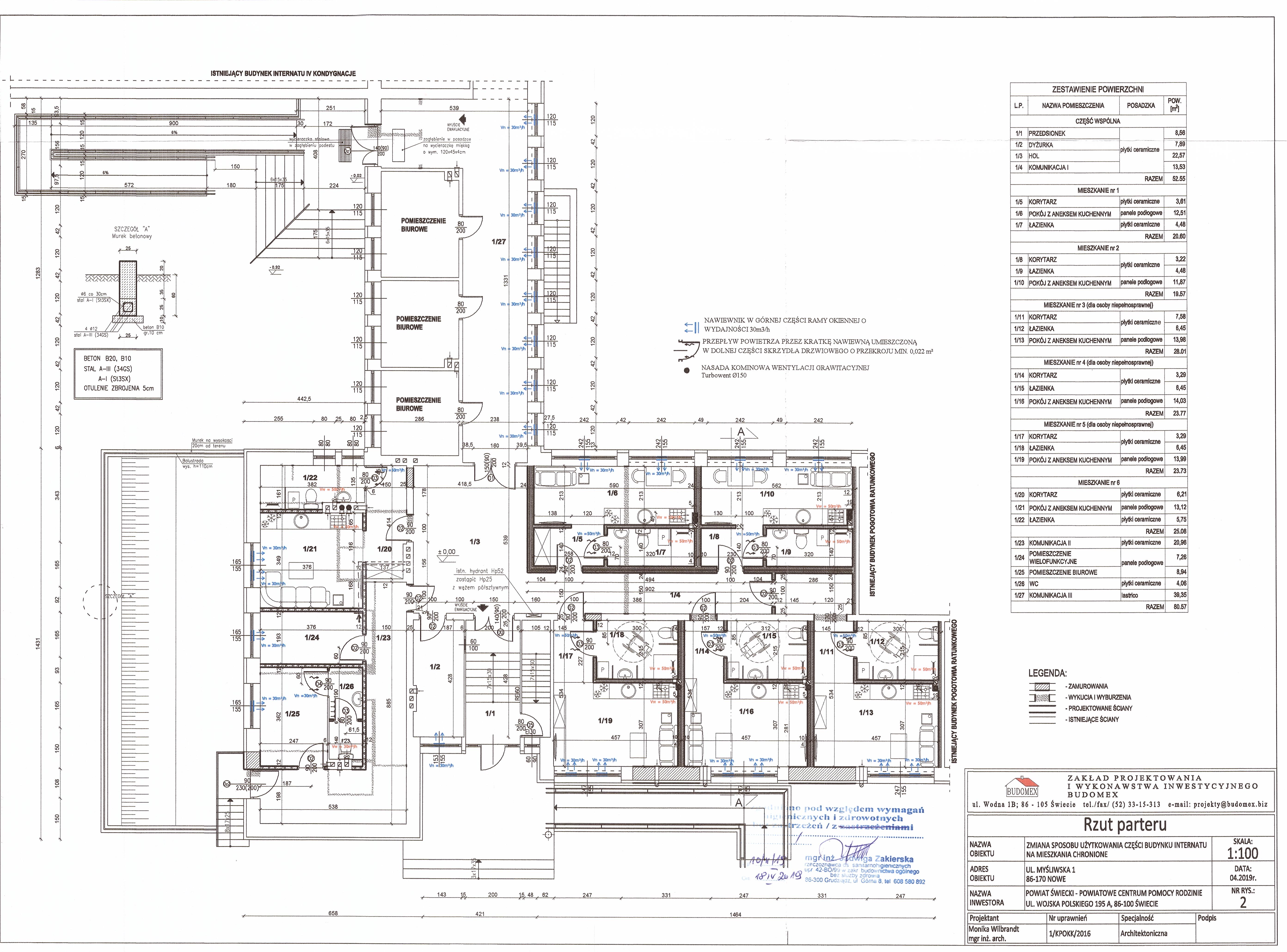
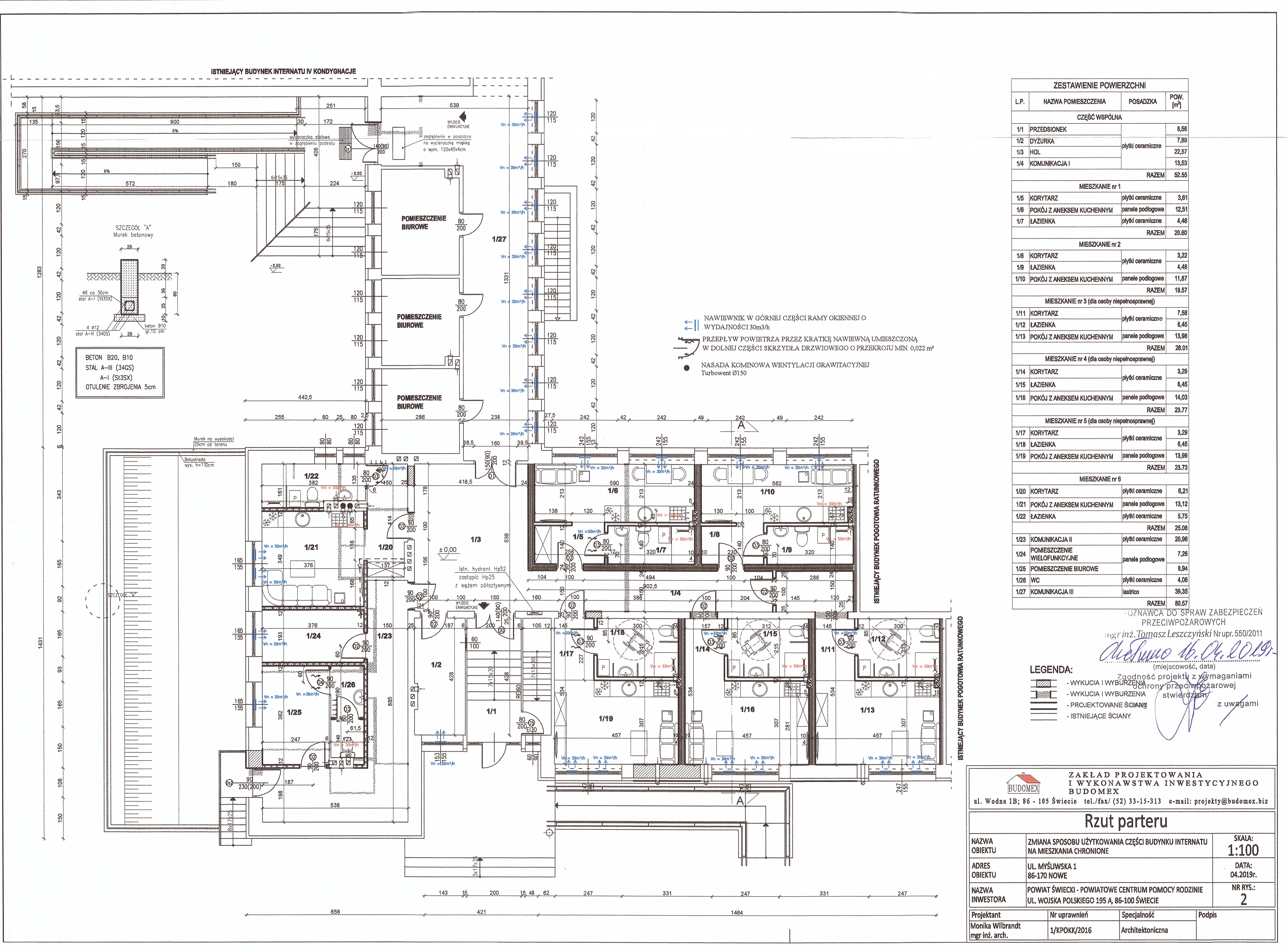
| Rzut parteru uzgodnienia przeciwpoażarowe | dodany: 15:50, 14.05.2020 | przez: Joanna Kowalska | |
| Rzut parteru uzgodnienia sanitarne | dodany: 15:50, 14.05.2020 | przez: Joanna Kowalska | |
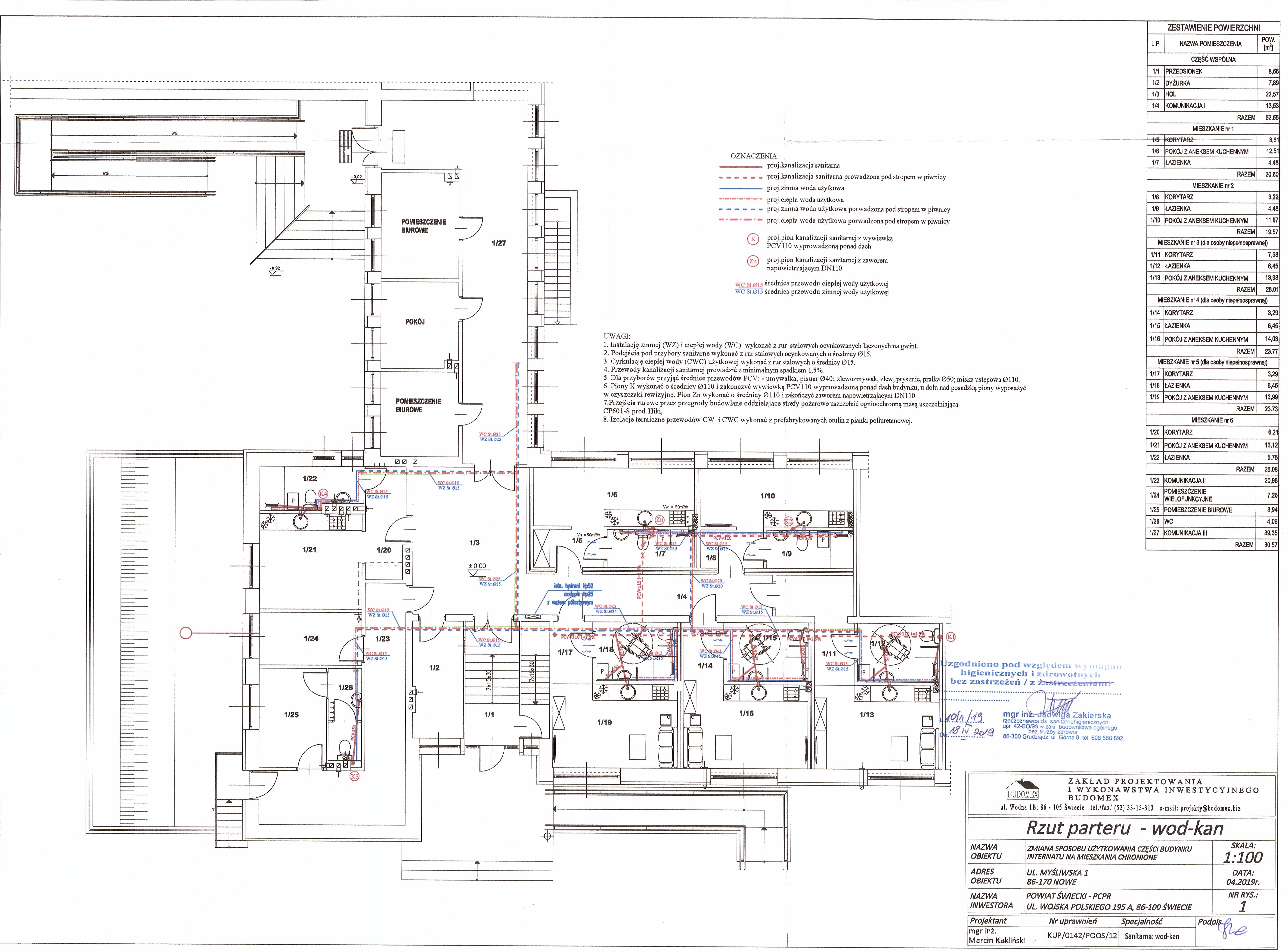
| Rzut parteru uzgodnienia wod.-kan. | dodany: 15:50, 14.05.2020 | przez: Joanna Kowalska | |
| Projekt zagospodarowania tereniu uzgod.przeciwpożarowe | dodany: 15:50, 14.05.2020 | przez: Joanna Kowalska | |
| Projekt zagospodarowania terenu uzgodnienia sanitarne | dodany: 15:50, 14.05.2020 | przez: Joanna Kowalska |
Informacje
| wytworzono: | data: 00:00 14.05.2020 | przez: Karolina Gapska-Kostrzewa | |
| wprowadzono: | data: 15:52, 14.05.2020 | przez: Joanna Kowalska | |
| udostępniono: | data: 15:52, 14.05.2020 | przez: Joanna Kowalska | |
| zmodyfikowano: | data: 15:52, 14.05.2020 | przez: Joanna Kowalska | |
| osoba odpowiedzialna: | Karolina Gapska-Kostrzewa | ||
| podmiot udostępniający: | PCPR w Świeciu | ||
Rejestr zmian
| utworzono: | data: 15:52, 14.05.2020 | przez: Joanna Kowalska | Uzgodnienia do Ogłoszenia nr 539916-N-2020 z dnia 2020-05-14 r. |