Instalacje elektryczne do Ogłoszenia nr 539916-N-2020 z dnia 2020-05-14 r.
Załączniki
| Inf. BIOZ elektryka | dodany: 15:11, 14.05.2020 | przez: Joanna Kowalska | |
| Obliczenia techniczne | dodany: 15:12, 14.05.2020 | przez: Joanna Kowalska | |
| Opis tech. inst. elektr.cz. 1 | dodany: 15:13, 14.05.2020 | przez: Joanna Kowalska | |
| Opis tech. inst. elektr. cz. 2 | dodany: 15:14, 14.05.2020 | przez: Joanna Kowalska | |
| Opis tech. inst. elektr. cz. 3 | dodany: 15:14, 14.05.2020 | przez: Joanna Kowalska | |
| Opis tech. inst. elektr. cz. 4 | dodany: 15:15, 14.05.2020 | przez: Joanna Kowalska | |
| Oświadczenie o zgodności projektu | dodany: 15:19, 14.05.2020 | przez: Joanna Kowalska | |
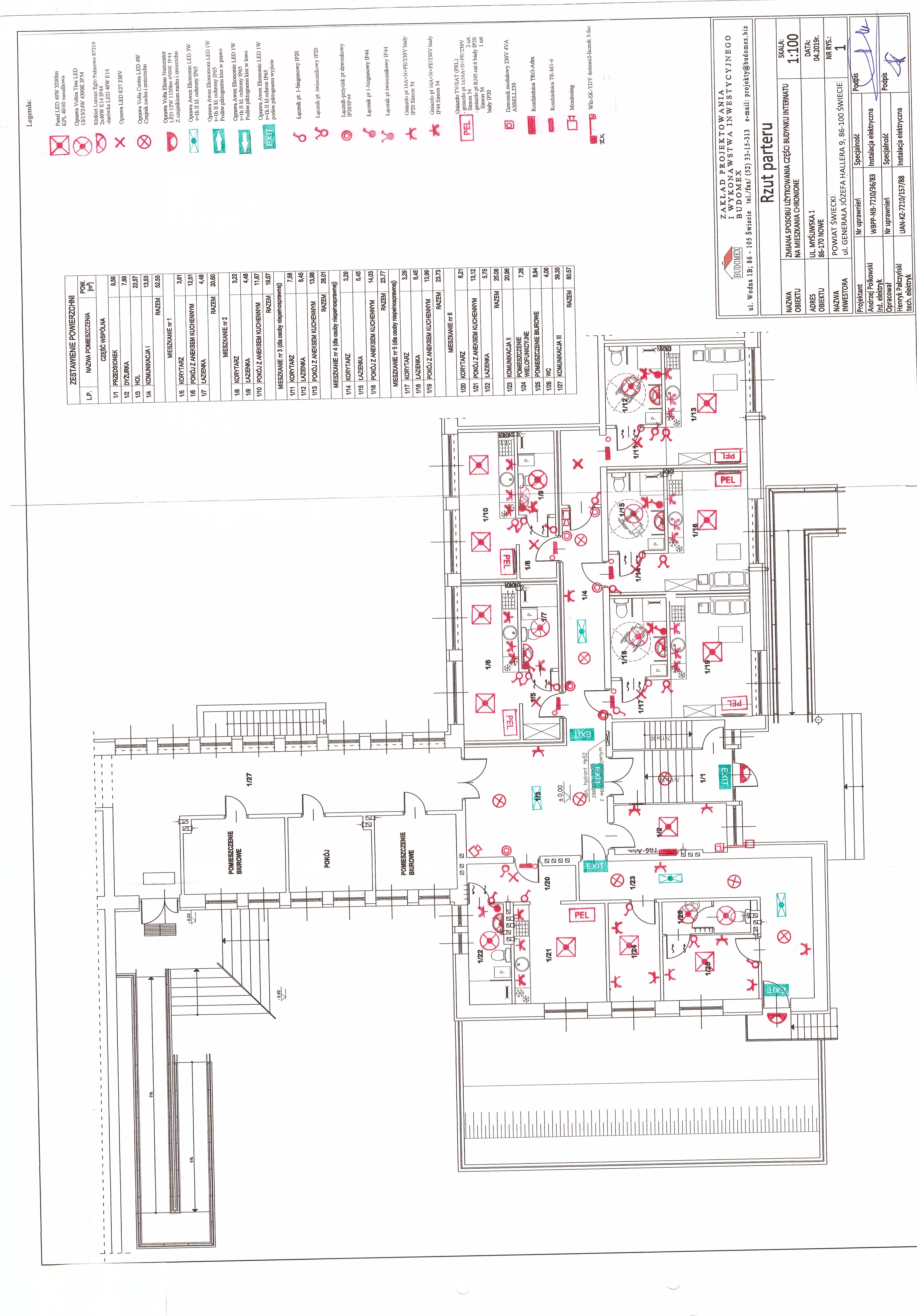
| Rzut parteru - plan instalacji elektrycznej | dodany: 15:19, 14.05.2020 | przez: Joanna Kowalska | |
| Schemat ideowy rozdzielnicy TRG-Adm. | dodany: 15:20, 14.05.2020 | przez: Joanna Kowalska | |
| Schemat ideowy rozdzielnicy TR-M 1-6 | dodany: 15:20, 14.05.2020 | przez: Joanna Kowalska | |
| Schemat ideowy WLZ i opomiarowania | dodany: 15:21, 14.05.2020 | przez: Joanna Kowalska | |
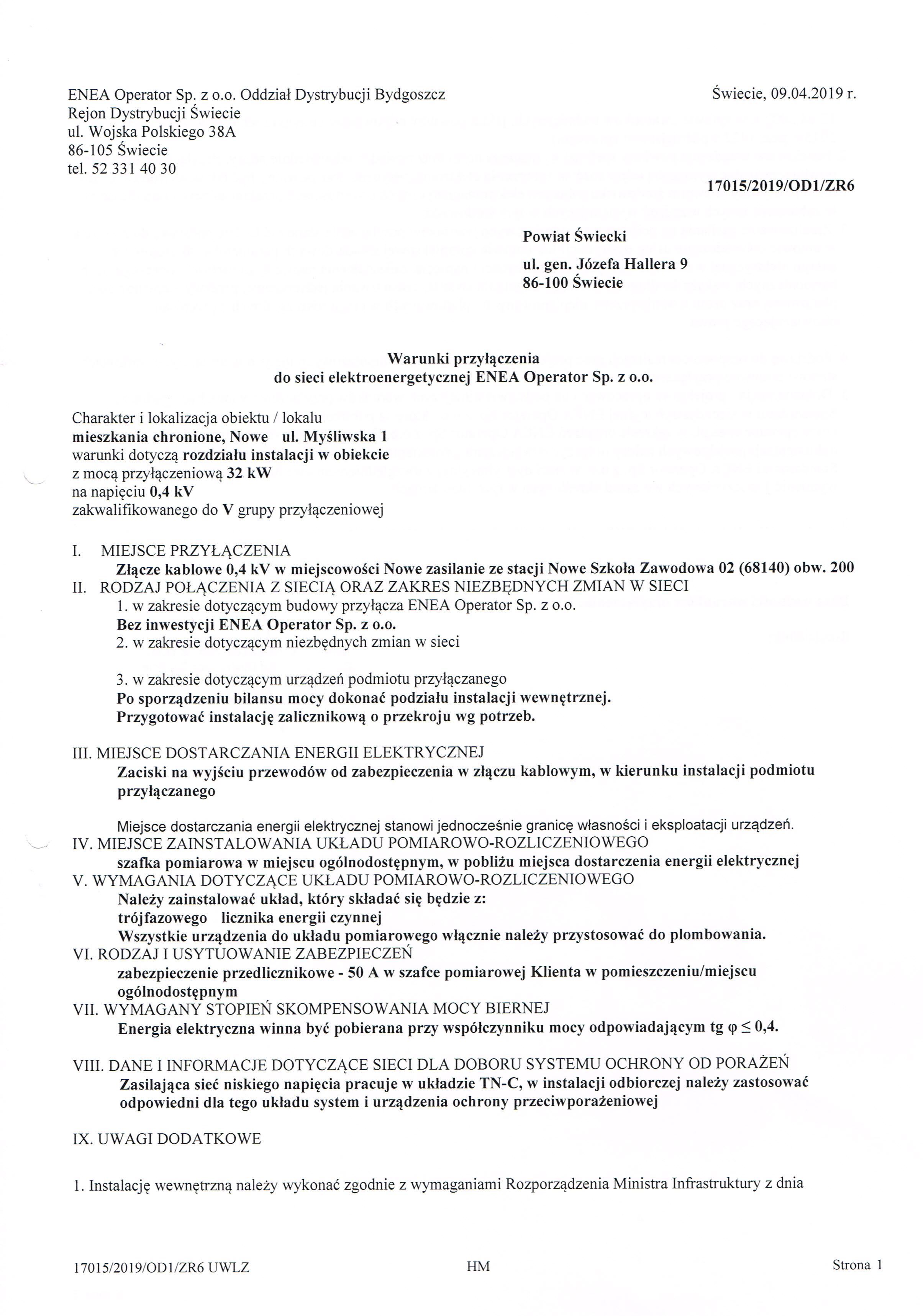
| Warunki przyłączenia cz.1 | dodany: 15:21, 14.05.2020 | przez: Joanna Kowalska | |
| Warunki przyłączenia cz. 2 | dodany: 15:21, 14.05.2020 | przez: Joanna Kowalska | |
| Widok elewacji rozdzielnicy TRG-Adm. | dodany: 15:22, 14.05.2020 | przez: Joanna Kowalska | |
| Widok elewacji rozdzielnicy TR-M 1-6 | dodany: 15:22, 14.05.2020 | przez: Joanna Kowalska | |
| Wykaz materiałów | dodany: 15:23, 14.05.2020 | przez: Joanna Kowalska |
Informacje
| wytworzono: | data: 00:00 14.05.2020 | przez: Karolina Gapska-Kostrzewa | |
| wprowadzono: | data: 15:23, 14.05.2020 | przez: Joanna Kowalska | |
| udostępniono: | data: 15:23, 14.05.2020 | przez: Joanna Kowalska | |
| zmodyfikowano: | data: 15:47, 14.05.2020 | przez: Joanna Kowalska | |
| osoba odpowiedzialna: | Karolina Gapska-Kostrzewa | ||
| podmiot udostępniający: | PCPR w Świeciu | ||
Rejestr zmian
| edytowane: | data: 15:47, 14.05.2020 | przez: Joanna Kowalska | Instalacje elektryczne do Ogłoszenia nr 539916-N-2020 z dnia 2020-05-14 r. | |
| utworzono: | data: 15:23, 14.05.2020 | przez: Joanna Kowalska | Instalacja elektryczna do Ogłoszenia nr 539916-N-2020 z dnia 2020-05-14 r. |